ERFAHREN SIE MEHR ZU UNSEREM FUHRPARK
Unser Maschinenportfolio reicht von der Kleinmastpumpe M24
bis hin zur Großmastpumpe mit einer Mastlänge von 60 Metern.
Darüber hinaus umfasst unser Fuhrpark 2 Fahrmischer mit Förderband sowie Spezialgeräte wie Schlauchpumpen, Fahrmischpumpen, mechanische Drehverteiler und elektrohydraulische Verteilermasten.
Unser Fachpersonal wird Sie ausführlich beraten, um die geeignete BPZ-Betonpumpe für Ihr Bauvorhaben bereitzustellen.
Bitte erfragen Sie die genaueren Daten telefonisch unter 07361 – 529500.
Gerne können Sie uns auch eine E-Mail an info@bpz-kocher-rems.de senden oder verwenden Sie unser Kontaktformular.
Wir beraten Sie gerne.
Gesamtübersicht
| Fahrzeugmodell | M 24 Putzmeister | M 35 Cifa | M 36 Cifa | M 38 Putzmeister | M 42 Putzmeister | M 52 Putzmeister | M 56 Putzmeister | M 60 Cifa |
|---|---|---|---|---|---|---|---|---|
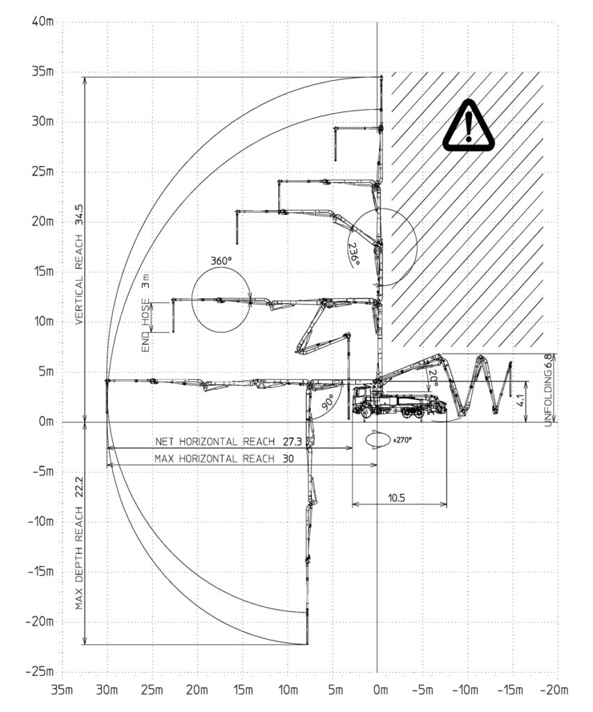
| Reichhöhe in m | 23,60 | 34,50 | 35,10 | 37,50 | 41,10 | 52,00 | 55,10 | 59,10 |
| Reichweite in m | 19,70 | 30,00 | 31,10 | 32,80 | 36,80 | 44,80 | 49,90 | 54,10 |
| Reichtiefe in m | 14,50 | 22,20 | 23,00 | 25,30 | 29,70 | 38,10 | 40,30 | 44,40 |
| Ausfalthöhe in m | 4,90 | 6,80 | 7,10 | 7,40 | 8,30 | 10,40 | 15,60 | 14,20 |
| Förderleistung in m3/h | 160 | 160 | 160 | 160 | 160 | 160 | 160 | |
| Arme/Faltung | 4 / Z | 5 / Z | 5 / Z | 5 / RZ | 5 / RZ | 5 R/Z | 5 / RZ | |
| Abstützbreite* vorn in m | 5,60 | 6,28 | 6,27 | 6,00 | 8,30 | 10,50 | 9,30 | 9,40 |
| Abstützbreite* hinten in m | 2,60 | 6,57 | 6,39 | 8,10 | 7,70 | 9,90 | 12,10 | 12,70 |
| Stützenabstand vorn/hinten in m | 6,55 | 7,40 | 7,00 | 8,05 | 10,40 | 10,50 | ||
| Stützdruck vorn kn | 150 | 175 | 175 | 195 | 225 | 340 | 395 | 360 |
| Stützdruck hinten kn | 90 | 155 | 155 | 210 | 225 | 350 | 325 | 335 |
| Fahrzeughöhe max. in m | 4,00 | 4,00 | 4,00 | 4,00 | 4,00 | 4,00 | 4,00 | 4,00 |
| Fahrzeuglänge in m | 10,10 | 10,60 | 10,20 | 10,85 | 10,75 | 14,30 | 14,12 | 13,40 |
| zulässiges Gesamtgewicht in t | 27.5 | 32 | 27.5 | 27.5 | 33 | 48 | 50 |
Detailangaben zu den einzelnen Modellen:
Die folgenden Daten sind Herstellerangaben und beziehen sich auf die Standardausführung. Je nach Konfiguration sind Abweichungen möglich.





























